Beschrijving

INSTAPKLARE EENGEZINSWONING AAN HET WATER MET ZONNIGE, AANGELEGDE ACHTERTUIN EN EIGEN OPRIT MET LAADPAAL

Ruimte, rust en water, deze uitgebouwde eengezinswoning in de populaire wijk Maaspoort heeft het allemaal. Met een zonnige tuin op het zuiden, een sfeervolle overkapping aan het water, eigen oprit en vier slaapkamers is dit de ideale woning voor wie ruim en comfortabel wil wonen!

Aan de rustige en kindvriendelijke To Janssenstraat in de wijk Maaspoort ligt deze verrassend ruime en over de gehele breedte uitgebouwde woning, met een unieke ligging grenst de achtertuin aan het water. Achter de voorgevel schuilt een instapklaar huis met een heerlijk lichte en vooral grote woonkamer, moderne keuken, vier slaapkamers en een diepe achtertuin op het zuiden met vrij uitzicht over groen en water.
De woning is netjes onderhouden en biedt alles wat je nodig hebt: veel leefruimte, een zonnige tuin, een eigen parkeerplaats met laadpaal en een fijne ligging dicht bij alle belangrijke voorzieningen.

Indeling
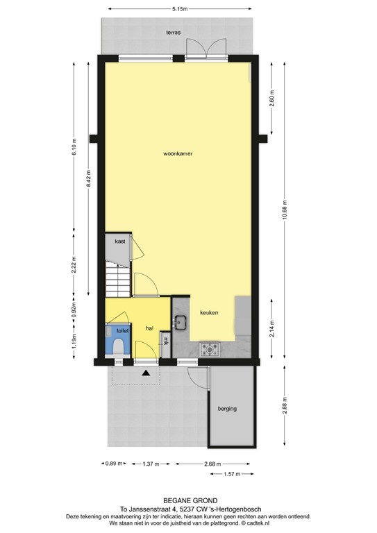
Begane grond
Je komt binnen via de hal, welke is uitgevoerd met de meterkast (voorzien van een moderne groepenkast) en een modern toilet met wandcloset en fonteintje. 
Vanuit hier stap je de royale, tuingerichte woonkamer in, welke aan de achterzijde over de volle breedte is uitgebouwd. Dankzij de openslaande tuindeuren en grote raampartijen is de woonkamer bijzonder licht en heb je prachtig uitzicht op de tuin. 
De wanden zijn afgewerkt met Spachtelputz, het plafond met stucwerk en de moderne laminaatvloer, welke in visgraat motief is gelegd, geeft het geheel een warme en luxe uitstraling.
De woonkamer is voorzien van een elektrisch bedienbare zonnescreen en een elektrisch bedienbare zonneluifel. Daarmee houd je de woonkamer aangenaam koel en met een achtertuin gericht op het zuiden is dat erg prettig!

Aan de voorzijde bevindt zich de moderne open keuken in U-opstelling, voorzien van diverse inbouwapparatuur zoals een combi-magnetron, koelkast, gaskookplaat (4 pits + wokbrander), moderne afzuigkap en vaatwasmachine. Er is voldoende kast- en laderuimte en de keuken is voorzien van een grote apothekerskast.

Eerste verdieping
De overloop biedt toegang tot drie ruime slaapkamers en een moderne badkamer. 

De luxe badkamer is uitgevoerd in een eigentijdse kleurstelling en voorzien van een douchecabine met regendouche, dubbele wastafel met meubel, een wandcloset, designradiator en een raam voor daglicht en (extra) ventilatie. 

De slaapkamers zijn voorzien van laminaatvloeren en de 2 slaapkamers aan de achterzijde zijn uitgevoerd met elektrisch bedienbare rolluiken. 
De hoofdslaapkamer beschikt bovendien over airconditioning (uitgevoerd als split-unit).
Omdat het dak op de eerste verdieping niet begint te hellen, zoals je wel vaak ziet bij woningen op de Maaspoort, zijn de slaapkamers (en de badkamer) extra / opvallend ruim. Je hebt hierdoor volop ruimte om de slaapkamers goed in te richten.

Tweede verdieping
Via een vaste trap bereik je de ruime zolderverdieping. 
Hier vind je een voorzolder met aansluitingen voor wasmachine en droger, de cv-opstelling (Intergas Kombi Kompakt HR combiketel, bouwjaar 2006) en extra bergruimte onder de lage kap. 

De zolderkamer is dankzij de brede dakkapel extra ruim en heerlijk licht en perfect te gebruiken als vierde slaapkamer, werkkamer of hobbyruimte.
De dakkapel is voorzien van een elektrisch bedienbaar rolluik.

Tuin
De opvallend diepe achtertuin, aangelegd met niveauverschil richting het water, is een absoluut pluspunt! 
Met een gunstige zonligging op het zuiden geniet je hier de hele dag van de zon. 
De tuin is fraai aangelegd met een ruim terras, groene borders en als blikvanger een sfeervolle houten overkapping (ca 2,75 x 2,75 meter) aan het water. Een heerlijke plek om te ontspannen en te genieten van de rust en het uitzicht.

Oprit en berging
Aan de voorzijde beschikt de woning over een eigen oprit (voorzien van laadstation t.b.v. een elektrische auto) en een stenen berging van ca. 5 m² voor het plaatsen van fietsen of extra opslag.


Ligging
De woning ligt aan een rustige straat zonder doorgaand verkeer, midden in de geliefde wijk Maaspoort. In de directe omgeving vind je diverse scholen, kinderopvang, speeltuinen en sportvoorzieningen. Het overdekte winkelcentrum Lokerenpassage met supermarkten, horeca en winkels ligt op korte fietsafstand.
Ook de natuur is dichtbij: het Maasoevergebied met haar wandel- en fietsroutes ligt praktisch om de hoek.
Het bruisende centrum van ’s-Hertogenbosch is met de fiets, auto of het openbaar vervoer uitstekend bereikbaar; de bushalte bevindt zich op loopafstand.


Belangrijke kenmerken
•	Bouwjaar: 1988
•	Woonoppervlakte: ca. 123 m²
•	Perceeloppervlakte: 165 m²
•	Inhoud: ca. 410 m³
•	Energielabel C
•	Ruim uitgebouwde woonkamer
•	Moderne keuken en badkamer
•	Vier ruime slaapkamers
•	Achtertuin op het zuiden, gelegen aan waterloop
•	Houten overkapping aan het water
•	Eigen oprit met laadpaal
•	Geïsoleerd (vloer, dak, gevel, dubbel glas)
•	Glasvezel internet aanwezig
•	Rustige, kindvriendelijke ligging nabij voorzieningen.

Kortom
To Janssenstraat 4 is een instapklare gezinswoning met verrassend veel ruimte, een zonnige tuin op het zuiden en een unieke ligging aan het water. 
Een plek waar je elke dag geniet van rust, comfort en het buitenleven — en dat alles binnen handbereik van winkels, scholen en de stad.

Interesse?
Laat je verrassen door de ruimte, het licht en de prachtige ligging aan het water.
Maak snel een afspraak met Peter Brouwers Makelaardij voor een bezichtiging – wij leiden je graag persoonlijk rond!


----
De woningbrochure met indelingstekeningen is uitsluitend afgedrukt als hulpmiddel, om u zo goed mogelijk te oriënteren omtrent de indeling, maar niet over afwerking etc. De gegevens zijn in de meeste gevallen afkomstig van aan ons ter hand gestelde tekeningen.

De mogelijkheid blijft aanwezig dat er wijzigingen zijn geweest tijdens de bouw of daarna, of dat er bouwtechnisch is afgeweken van die tekeningen (ook qua maten).
Bij de bezichtiging zie je de werkelijkheid, waarvan je bij een eventuele koop uitgaat. Daar is uiteindelijk de bezichtiging voor, die wij graag voor jou regelen.

Deze documentatie is met veel zorg samengesteld. Aan enige onjuistheden en/of onvolkomenheden kunnen echter geen rechten worden ontleend.
Deze wooninformatie wordt/werd naar meer geïnteresseerden gezonden en is slechts een uitnodiging om in onderhandeling te treden.

Kenmerken